Regulus H Profil Predaj Prenájom Služby Realizácie Kontakty

Prenájom - Byty Vajanského ulica, Trnava

Popis

Vajanského ulica č.39 a 40
Všetky byty sú úplne zariadené. K zariadeniu patrí i posteľné prádlo, osušky a vybavenie kuchyne. V cene bytu sú započítané všetky energie , televízny signál od spoločnosti SWAN a internet.


Byty

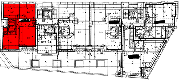
II.NP

  Byt Podlažie Počet izieb Obsadenosť Plocha (m²)
  Byt č. 1 II. NP 3-izbový obsadené 74,70 m² + 23,8 m² terasa


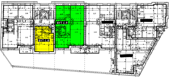
III.NP

  Byt Podlažie Počet izieb Obsadenosť Plocha (m²)
  Byt č. 8 III. NP 1-izbový obsadené 28,75 m²
  Byt č. 9 III. NP 3-izbový obsadené 72,50 m² + 5 m² balkón


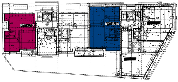
IV.NP

  Byt Podlažie Počet izieb Obsadenosť Plocha (m²)
  Byt č. 13 IV. NP 2-izbový obsadené 63,40 m² + 5 m² balkón
  Byt č. 16 IV. NP 3-izbový obsadené 76,60 m² + 5 m² balkón
 
     


 Stiahnuť pôdorys II.NP >
 Stiahnuť pôdorys III.NP >
 Stiahnuť pôdorys IV.NP >
Regulus H, s.r.o.
Starohájska 9/B
917 91 Trnava
Tel.: +421 33 2933 252
Fax: +421 33 2933 251
E-mail: regulush@regulush.sk

Profil    |    Predaj    |    Prenájom    |    Služby    |    Realizácie    |    Kontakty
Informácie o používaní cookies  

Created by SLOVAKIA WebDesign - tvorba web stránok