Regulus H Profil Predaj Prenájom Služby Realizácie Kontakty

Prenájom - Skladovo - technické priestory Skladová ulica 3, Trnava

Popis

Budova je situovaná v severo-západnej priemyselnej časti Trnavy, na okraji mesta z veľmi dobrým napojením na obchvat mesta a hlavný smerový ťah na Českú republiku.

Konštrukčný systém objektu je prízemný železobetónový skelet, steny sú murované z časti pórobetónovými tvarovkami, z časti plnou pálenou tehlou.

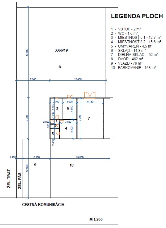
Priestory sú tvorené veľkým skladom, menším skladom, kanceláriou a šatňou. Objekt má umyváreň a samostatné WC.

Stavba má plochú strechu tvorenú z betónových stropných panelov, ktorá nie je vo veľkom skladovom priestore zateplená, avšak konštrukcie umožňujú dodatočné zateplenie.
V technickej časti je strop tvorený z plastových kaziet, zvrchu zateplených minerálnou vlnou. Steny sú z interiérovej strany poomietané vápennocementovou omietkou, vystierkované a omaľované bielou farbou. Z exteriéru je objekt zateplený systémom Baumit z EPS dosiek hrúbky 100 mm a ukončený štruktúrovou omietkou.

Vonkajšie výplne otvorov sú okná plastové s izolačným dvojsklom a oceľové dvere v kombinácii so sklom. Vnútorné výplne otvorov sú z dverných krídel na báze dreva.
Objekt je vykurovaný, s vlastným kúrením (plynový turbokotol). Voda v objekte je pitná.
Prístup k objektu je priamy s vedľajšej komunikácie.

K budove patrí oplotený dvor s betónovou povrchovou úpravou a plocha na parkovanie pred budovou. Dvor je vhodný na parkovanie , uloženie materiálu alebo akékoľvek skladovanie. Prístup do dvora je cez vlastnú veľkorozmernú bránu.
Všetky energie merateľné, všetko bezbarierové.

Obsadenosť: obsadené



Priestory

I. NP
 
     


 Stiahnuť pôdorys skladových priestorov>
Regulus H, s.r.o.
Starohájska 9/B
917 91 Trnava
Tel.: +421 33 2933 252
Fax: +421 33 2933 251
E-mail: regulush@regulush.sk

Profil    |    Predaj    |    Prenájom    |    Služby    |    Realizácie    |    Kontakty
Informácie o používaní cookies  

Created by SLOVAKIA WebDesign - tvorba web stránok